与时下流行的100平方米、120平方米左右较大众化的户型比起来,80平方米左右的面积已经是不折不扣的小户型了。如何提高小户型的使用率也成了这些住房主人关心的问题,如果再碰上房屋结构、设计不合理这样的问题话,就更让业主伤脑筋的了。碰到这种难题,业主该如何装修呢?南海森柏装饰两位设计师杨世舜、江彤云为我们提供了很好的案例?熏希望能给读者带来一点启发。

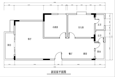
本案例中,房屋面积为80平方米左右,两房两厅,从改造前的平面图中可以看到,由于餐厅和厨房占用了较大面积,影响了两侧阳台景观的观光性,右侧阳台外花园的景观没有得到很好利用,客厅受面积限制给人一种压抑的感觉,厨房、卫生间的空间没有得到很好的利用。此外,主人还抱怨改造前的卧房,尤其是主人房向西,在夏天感觉十分炎热。

在接受了主人的建议之后,两位设计师对整个房间进行了很大的改动。首先,将原来的客厅变为主人房和工作间,不仅解决了主人卧房日落夕照的闷热之苦,还很好地利用了有限的空间让卧房大小自由的变换;第二是将厨房和餐厅改造为客厅,这样一来,右侧阳台外花园的美景可以尽收眼底了;其他改造的地方是小孩房移到主人房,原来的小孩房改为厨房和杂物室,这样一来,功能性的分区显得更加合理了。难怪主人的朋友都认为这套房子有100多平方米,其实实际的面积只有80平方米左右。
|